home

Conception de mon réseau

Dans cette rubrique faites nous part de vos réalisations, vos recherches astuces conseils afin que nous puissions tous soit vous aider ou partager ce que vous avez réalisé.

Re : Conception de mon réseau

Messagepar jeremy28000 » 05 Février 2009, 18:34

Quelqu'un pourrait-il me dire quel doit être l'espacement entre deux voies en parallèle en HO
Avatar de l’utilisateur
jeremy28000
 
Message(s) : 0
Inscrit le : 27 Novembre 2008, 01:00

Re : Conception de mon réseau

Messagepar Julien » 05 Février 2009, 19:11

Je relisais ce que tu disais il y a peut ! Fait attention a ne pas aller trop vite !



Sur ton plan est tu sure de vouloir 2 voies parallèles ?



Réfléchis bien à ton plan avant de te lancer !!!



Si le principe du plan "point à point" donné quelque page avant ne te convient pas alors il te faudra une boucle ! Mais comment ? Évite les réseaux spaghetti ça devient vite pénible !



Aurait tu accès au deux côtés du réseau ?
Lenz Set 90
Avatar de l’utilisateur
Julien
 
Message(s) : 38
Inscrit le : 29 Novembre 2005, 01:00

Re : Conception de mon réseau

Messagepar jeremy28000 » 05 Février 2009, 19:21

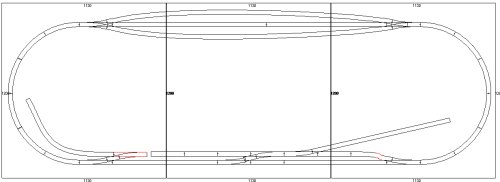
Regarde j'ai pensé à cela sinon.



j'ai une autre question aussi vu le prix des moteurs d'aiguillage roco y a t-il une autre marque pour les moteurs??
20090205182140.jpg
20090205182140.jpg (13.91 Kio) Consulté 5432 fois
Avatar de l’utilisateur
jeremy28000
 
Message(s) : 0
Inscrit le : 27 Novembre 2008, 01:00

Re : Conception de mon réseau

Messagepar jeremy28000 » 05 Février 2009, 19:23

Pour en revenir à tes questions je n'arrive pas à concevoir un réseau qui n'est pas ovale.

J'ai beau fouiller partout je ne trouve pas comment faire.

Et non malheureusement je n'ai pas accès au réseau des deux côtés
Avatar de l’utilisateur
jeremy28000
 
Message(s) : 0
Inscrit le : 27 Novembre 2008, 01:00

Re : Conception de mon réseau

Messagepar Julien » 05 Février 2009, 20:42

Le style de plan que te t'ai mis au début, ça ne te va pas ?



Je me rappelle plus de ta réponse, tu veut manoeuvrer avec tes trains ou les voire roulés ?

Si tu as besoin d'idée pour un plan non ovale, je devrais pouvoir t'aider
Lenz Set 90
Avatar de l’utilisateur
Julien
 
Message(s) : 38
Inscrit le : 29 Novembre 2005, 01:00

Re : Conception de mon réseau

Messagepar jeremy28000 » 05 Février 2009, 20:45

Et bien je suis tout ouie

J'attend avec impatience.

Demain je vais aller chez le marchand pour me renseigner un peu des prix.
Avatar de l’utilisateur
jeremy28000
 
Message(s) : 0
Inscrit le : 27 Novembre 2008, 01:00

Re : Conception de mon réseau

Messagepar Julien » 05 Février 2009, 20:53

Faire manoeuvrer ou voir rouler ?
Lenz Set 90
Avatar de l’utilisateur
Julien
 
Message(s) : 38
Inscrit le : 29 Novembre 2005, 01:00

Re : Conception de mon réseau

Messagepar jeremy28000 » 05 Février 2009, 20:55

Ba tu me dis que tu pouvais m'aider et me donner des idées pour un réseau non ovale alors je suis preneur.

J'ai 3m40x1m20.

Merci julien
Avatar de l’utilisateur
jeremy28000
 
Message(s) : 0
Inscrit le : 27 Novembre 2008, 01:00

Re : Conception de mon réseau

Messagepar Julien » 05 Février 2009, 23:06

Je te demande pour t'établir un plan l'orientation que tu veut lui donner !

Plutôt manoeuvre ou traffic globale ?



Un plan ça dépend de plein de critère !



C'est critère, c'est...



1 : le matériel ??? (autorails, train voyageur long, train marchandise) ???



2 : Quel traffic ??? ( autorails pour le voyageur et petit train de marchandise par exemple un complexe agricole ??? Ou alors sans traffic voyageur, uniquement des marchandises avec un port par exemple ??? Ou bien un dépot ??? )



2 : le décor ??? (petite ville, moyen ville, industrielle, port, campagne, urbain) ???



3 : Le but ??? (Manoeuvrer ou voir circuler) ????



Un coup que tu me donne ses réponses, je te fais un plan

qui je l'espère te conviendra



Un plan c'est personnel, d'où toutes ses questions ! On peut t'aider, te proposer mais pas décider de ce que tu feras ! C'est en fonction de ce que tu souhaite faire ! et ça tu est le seul à le savoir !



Selon les choix que tu feras il te faudra apprendre des techniques différentes ! Mais d'abord dis nous ;)
Lenz Set 90
Avatar de l’utilisateur
Julien
 
Message(s) : 38
Inscrit le : 29 Novembre 2005, 01:00

Re : Conception de mon réseau

Messagepar jeremy28000 » 06 Février 2009, 08:37

Pour ce qui est du matériel je souhaiterai faire circuler autorails, train voyageur (4 ou 5 voitures ) et un petit convoi de marchandise.

J'aimerai tout de même avoir une gare voyageur.Mais je te rejoint dans l'idée d'avoir un complexe de marchandise afin de pouvoir faire des manoeuvres.

2tant donné que j'ai 3m40 de longueur je voulais à côté de la gare faire une petite ville qui aurait des airss de campagnes comme beaucoup de ville de ma région.

Le but réelle de mon réseau et de me faire plaisir à voir circuler mes rames mais aussi de pouvoir manoeuvrer mon convoi de marchandise ou bien d'atteler une loco à l'autre bout de la rame .

Je pense que les deux sont possibles??non??
Avatar de l’utilisateur
jeremy28000
 
Message(s) : 0
Inscrit le : 27 Novembre 2008, 01:00

PrécédentSuivant

Retour vers VOTRE RESEAU, VOS REALISATIONS, VOS INTERROGATIONS

Qui est en ligne ?

Utilisateur(s) parcourant ce forum : Aucun utilisateur inscrit et 12 invité(s)